martes, 8 de septiembre de 2015

Avances para la corrección obligatoria del día 9-09

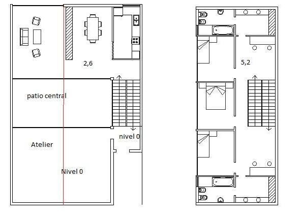
Plantas del proyecto actual
Proximamente se subirán los cortes y la vista del mismo.

Vivienda entre medianeras para un pintor

Luego del planteo del siguiente proyecto, surgieron varios aspectos de la vivienda a analizar cumpliendo con el programa; desde superficies requeridas, (cumplimiento del FOS y FOT mediante normativa), asoleamiento, materialidad en relación con las demás viviendas del barrio, y funcionalidad con respecto a los requermientos del habitante.
De ahí surge la idea principal, que mediante los siguientes croquis se ha ido desarrollando a lo largo de las primeras dos semanas de trabajo en taller e individual.
Aquí van los primeros croquis de trabajo con algunas correcciones de los ayudantes.

Idea

1er corrección




2da corrección

Maqueta de la segunda semana de trabajo

Planta baja de la segunda semana de trabajo
Planta alta de la segunda semana de trabajo

 Vista


Vista y corte